A11

Dostupný

Podlažie Dispozícia Plocha info
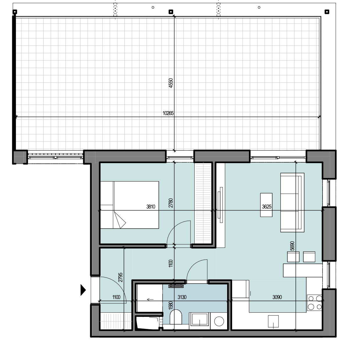
1. np 2 izbový 90,70m2
  • Pozícia bytu Zobraziť
  • Budova BD 1
  • Loggia nie
  • Terasa áno
  • Plocha terasy 47,29m2
  • Plocha pivničnej kobky 2,52 m2
  • Cena bytu v štandarde s DPH 166 859,52 EUR
  • Parkovanie Vonkajšie parkovacie státie*
* Vonkajšie parkovacie státie: 7687,50€ * Vonkajšie parkovacie státie s predprípravou pre elektrické nabíjanie: 9225,00€ * Vnútorné parkovacie miesto: 15375,00€
Kontaktný formulár a súbory na stiahnutie
A-11_podorys.pdf

Na začiatku zaplatíte iba

20%

Ako prebieha kúpa bytu?

1. Zmluva o budúcej kúpnej zmluve

Po podpise zmluvy o budúcej kúpnej zmluve uhradíte len 20 % z kúpnej ceny.

2. Zvyšok pri kolaudácii

Po kolaudácii doplatíte zvyšných 80 % z kúpnej ceny a môžete sa nasťahovať.

Odkaz referencie bol skopírovaný
Zábreh Ilava
Prehľad ochrany osobných údajov

Táto webová stránka používa cookies, aby sme vám mohli poskytnúť čo najlepší používateľský zážitok. Informácie o súboroch cookie sa ukladajú vo vašom prehliadači a vykonávajú funkcie, ako je rozpoznanie vás, keď sa vrátite na našu webovú stránku, a pomáhajú nášmu tímu pochopiť, ktoré časti webovej stránky sú pre vás najzaujímavejšie a najužitočnejšie.