Ponuka bytov

Na začiatku zaplatíte iba

20%

Ako prebieha kúpa bytu?

1. Zmluva o budúcej kúpnej zmluve

Po podpise zmluvy o budúcej kúpnej zmluve uhradíte len 20 % z kúpnej ceny.

2. Zvyšok pri kolaudácii

Po kolaudácii doplatíte zvyšných 80 % z kúpnej ceny a môžete sa nasťahovať.

Nepremeškajte svoju šancu

Váš nový domov už na vás čaká.

Viac ako 69.8% bytov je už predaných či rezervovaných. Zostalo už len pár bytov.

3 1,5 izbových bytov
7 Dvojizbových bytov
6 Trojizbových bytov
0 Štvorizbových bytov

Ponuka bytov

3D vyberač bytov
Budova
Poschodie
Označenie bytu
Dispozícia
Podlahová plocha (m2)
Loggia
Plocha loggie (m2)
Celková plocha (m2) info
Terasa
Plocha terasy (m2)
Cena s DPH
Dostupnosť
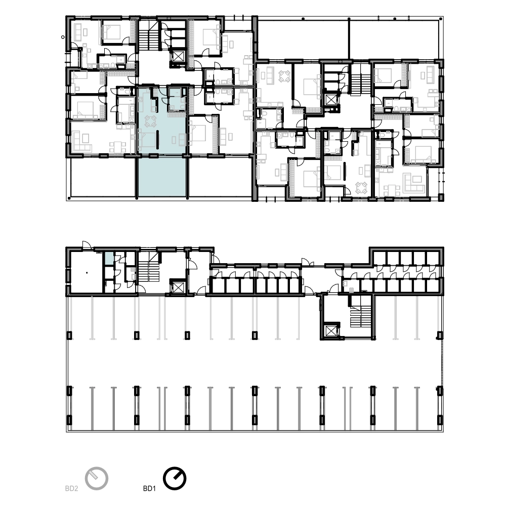
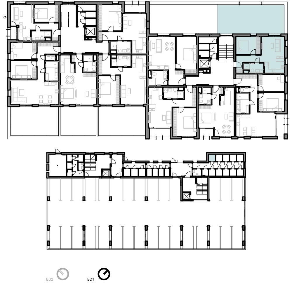
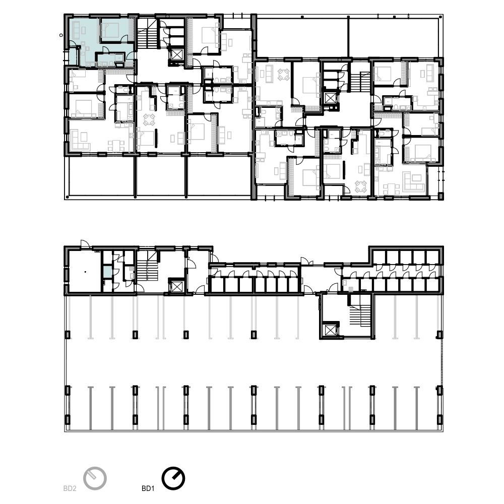
Pozícia
Vstúpiť
Poschodie
Dispozícia
Celková plocha
byt + kobka + terasa / loggia (m2)
Cena s DPH
Dostupnosť
Budova BD 1
Označenie bytu A11
Loggia nie
Podlahová plocha m2  40,89m2
Terasa áno
Plocha terasy (m2) 47,29m2
Pozícia Ukázať
Budova BD 1
Označenie bytu A12
Loggia áno
Plocha loggie (m2) 4,24m2
Podlahová plocha m2  63,54m2
Terasa nie
Pozícia Ukázať
Budova BD 1
Označenie bytu A13
Loggia áno
Plocha loggie (m2) 2,58m2
Podlahová plocha m2  37,52m2
Terasa nie
Pozícia Ukázať
Budova BD 1
Označenie bytu A14
Loggia áno
Plocha loggie (m2) 3,84m2
Podlahová plocha m2  49,83m2
Terasa nie
Pozícia Ukázať
Budova BD 1
Označenie bytu A15
Loggia nie
Podlahová plocha m2  51,49m2
Terasa áno
Plocha terasy (m2) 48,08m2
Pozícia Ukázať
Budova BD 1
Označenie bytu B11
Loggia áno
Plocha loggie (m2) 1,93m2
Podlahová plocha m2  37,49m2
Terasa nie
Pozícia Ukázať
Budova BD 1
Označenie bytu B13
Loggia nie
Podlahová plocha m2  41,17m2
Terasa áno
Plocha terasy (m2) 25,03m2
Pozícia Ukázať
Budova BD 1
Označenie bytu B12
Loggia nie
Podlahová plocha m2  69,24m2
Terasa áno
Plocha terasy (m2) 33,9m2
Pozícia Ukázať
Budova BD 1
Označenie bytu B14
Loggia nie
Podlahová plocha m2  55,2m2
Terasa áno
Plocha terasy (m2) 33,26m2
Pozícia Ukázať
Budova BD 1
Označenie bytu B15
Loggia áno
Plocha loggie (m2) 3,85m2
Podlahová plocha m2  46,49m2
Terasa nie
Pozícia Ukázať
Budova BD 1
Označenie bytu A21
Loggia áno
Plocha loggie (m2) 2,51m2
Podlahová plocha m2  37,78m2
Terasa nie
Pozícia Ukázať
Budova BD 1
Označenie bytu A22
Loggia áno
Plocha loggie (m2) 5,63m2
Podlahová plocha m2  63,82m2
Terasa nie
Pozícia Ukázať
Budova BD 1
Označenie bytu A23
Loggia áno
Plocha loggie (m2) 3,17m2
Podlahová plocha m2  37,92m2
Terasa nie
Pozícia Ukázať
Budova BD 1
Označenie bytu A24
Loggia áno
Plocha loggie (m2) 4,79m2
Podlahová plocha m2  50,08m2
Terasa nie
Pozícia Ukázať
Budova BD 1
Označenie bytu A25
Loggia áno
Plocha loggie (m2) 4,35m2
Podlahová plocha m2  47,07m2
Terasa nie
Pozícia Ukázať
Budova BD 1
Označenie bytu B21
Loggia áno
Plocha loggie (m2) 2,49m2
Podlahová plocha m2  37,65m2
Terasa nie
Pozícia Ukázať
Budova BD 1
Označenie bytu B22
Loggia áno
Plocha loggie (m2) 5,62m2
Podlahová plocha m2  63,93m2
Terasa nie
Pozícia Ukázať
Budova BD 1
Označenie bytu B23
Loggia áno
Plocha loggie (m2) 3,14m2
Podlahová plocha m2  37,87m2
Terasa nie
Pozícia Ukázať
Budova BD 1
Označenie bytu B24
Loggia áno
Plocha loggie (m2) 4,82m2
Podlahová plocha m2  50,20m2
Terasa nie
Pozícia Ukázať
Budova BD 1
Označenie bytu B25
Loggia áno
Plocha loggie (m2) 4,79m2
Podlahová plocha m2  46,02m2
Terasa nie
Pozícia Ukázať
Budova BD 1
Označenie bytu A31
Loggia áno
Plocha loggie (m2) 2,51m2
Podlahová plocha m2  37,78m2
Terasa nie
Pozícia Ukázať
Budova BD 1
Označenie bytu A32
Loggia áno
Plocha loggie (m2) 5,63m2
Podlahová plocha m2  63,82m2
Terasa nie
Pozícia Ukázať
Budova BD 1
Označenie bytu A33
Loggia áno
Plocha loggie (m2) 3,17m2
Podlahová plocha m2  37,92m2
Terasa nie
Pozícia Ukázať
Budova BD 1
Označenie bytu A34
Loggia áno
Plocha loggie (m2) 4,79m2
Podlahová plocha m2  50,08m2
Terasa nie
Pozícia Ukázať
Budova BD 1
Označenie bytu A35
Loggia áno
Plocha loggie (m2) 4,35m2
Podlahová plocha m2  47,07m2
Terasa nie
Pozícia Ukázať
Budova BD 1
Označenie bytu B31
Loggia áno
Plocha loggie (m2) 2,49m2
Podlahová plocha m2  37,65m2
Terasa nie
Pozícia Ukázať
Budova BD 1
Označenie bytu B32
Loggia áno
Plocha loggie (m2) 5,62m2
Podlahová plocha m2  63,93m2
Terasa nie
Pozícia Ukázať
Budova BD 1
Označenie bytu B33
Loggia áno
Plocha loggie (m2) 3,14m2
Podlahová plocha m2  37,87m2
Terasa nie
Pozícia Ukázať
Budova BD 1
Označenie bytu B34
Loggia áno
Plocha loggie (m2) 4,82m2
Podlahová plocha m2  50,20m2
Terasa nie
Pozícia Ukázať
Budova BD 1
Označenie bytu B35
Loggia áno
Plocha loggie (m2) 4,79m2
Podlahová plocha m2  46,02m2
Terasa nie
Pozícia Ukázať
Budova BD 1
Označenie bytu A41
Loggia áno
Plocha loggie (m2) 2,51m2
Podlahová plocha m2  37,78m2
Terasa nie
Pozícia Ukázať
Budova BD 1
Označenie bytu A42
Loggia áno
Plocha loggie (m2) 5,63m2
Podlahová plocha m2  63,82m2
Terasa nie
Pozícia Ukázať
Budova BD 1
Označenie bytu A43
Loggia áno
Plocha loggie (m2) 3,17m2
Podlahová plocha m2  37,92m2
Terasa nie
Pozícia Ukázať
Budova BD 1
Označenie bytu A44
Loggia áno
Plocha loggie (m2) 4,79m2
Podlahová plocha m2  50,08m2
Terasa nie
Pozícia Ukázať
Budova BD 1
Označenie bytu A45
Loggia áno
Plocha loggie (m2) 4,35m2
Podlahová plocha m2  47,07m2
Terasa nie
Pozícia Ukázať
Budova BD 1
Označenie bytu B41
Loggia áno
Plocha loggie (m2) 2,49m2
Podlahová plocha m2  37,65m2
Terasa nie
Pozícia Ukázať
Budova BD 1
Označenie bytu B42
Loggia áno
Plocha loggie (m2) 5,62m2
Podlahová plocha m2  63,93m2
Terasa nie
Pozícia Ukázať
Budova BD 1
Označenie bytu B43
Loggia áno
Plocha loggie (m2) 3,14m2
Podlahová plocha m2  37,87m2
Terasa nie
Pozícia Ukázať
Budova BD 1
Označenie bytu B44
Loggia áno
Plocha loggie (m2) 4,82m2
Podlahová plocha m2  50,20m2
Terasa nie
Pozícia Ukázať
Budova BD 1
Označenie bytu B45
Loggia áno
Plocha loggie (m2) 4,79m2
Podlahová plocha m2  46,02m2
Terasa nie
Pozícia Ukázať
Budova BD 1
Označenie bytu A51
Loggia áno
Plocha loggie (m2) 2,51m2
Podlahová plocha m2  37,78m2
Terasa nie
Pozícia Ukázať
Budova BD 1
Označenie bytu A52
Loggia áno
Plocha loggie (m2) 5,63m2
Podlahová plocha m2  63,82m2
Terasa nie
Pozícia Ukázať
Budova BD 1
Označenie bytu A53
Loggia áno
Plocha loggie (m2) 3,17m2
Podlahová plocha m2  37,92m2
Terasa nie
Pozícia Ukázať
Budova BD 1
Označenie bytu A54
Loggia áno
Plocha loggie (m2) 4,79m2
Podlahová plocha m2  50,08m2
Terasa nie
Pozícia Ukázať
Budova BD 1
Označenie bytu A55
Loggia áno
Plocha loggie (m2) 4,35m2
Podlahová plocha m2  47,07m2
Terasa nie
Pozícia Ukázať
Budova BD 1
Označenie bytu B51
Loggia áno
Plocha loggie (m2) 2,49m2
Podlahová plocha m2  37,65m2
Terasa nie
Pozícia Ukázať
Budova BD 1
Označenie bytu B52
Loggia áno
Plocha loggie (m2) 5,62m2
Podlahová plocha m2  63,93m2
Terasa nie
Pozícia Ukázať
Budova BD 1
Označenie bytu B53
Loggia áno
Plocha loggie (m2) 3,14m2
Podlahová plocha m2  37,87m2
Terasa nie
Pozícia Ukázať
Budova BD 1
Označenie bytu B54
Loggia áno
Plocha loggie (m2) 4,82m2
Podlahová plocha m2  50,20m2
Terasa nie
Pozícia Ukázať
Budova BD 1
Označenie bytu B55
Loggia áno
Plocha loggie (m2) 4,79m2
Podlahová plocha m2  46,02m2
Terasa nie
Pozícia Ukázať
Budova BD 1
Označenie bytu A61
Loggia áno
Plocha loggie (m2) 9,98m2
Podlahová plocha m2  45,66m2
Terasa nie
Pozícia Ukázať
Budova BD 1
Označenie bytu A62
Loggia áno
Plocha loggie (m2) 9,64m2
Podlahová plocha m2  89,42m2
Terasa nie
Pozícia Ukázať
Budova BD 1
Označenie bytu A63
Loggia nie
Podlahová plocha m2  143,43m2
Terasa áno
Plocha terasy (m2) 31,89m2
Pozícia Ukázať


Ten pravý byt možno práve teraz čaká na vás

Vybrať si nové bývanie je veľký krok – a my veríme, že u nás nájdete ten, ktorý vám bude sedieť na prvý pohľad aj pocit.

Každý byt v Zábrehu Ilava je výsledkom premysleného návrhu a snahy vytvoriť miesto, kde sa dobre žije.

Ak vám niektorý z bytov padol do oka, neváhajte nás kontaktovať. Radi vám ho ukážeme osobne a pomôžeme s výberom.

Zábreh Ilava
Prehľad ochrany osobných údajov

Táto webová stránka používa cookies, aby sme vám mohli poskytnúť čo najlepší používateľský zážitok. Informácie o súboroch cookie sa ukladajú vo vašom prehliadači a vykonávajú funkcie, ako je rozpoznanie vás, keď sa vrátite na našu webovú stránku, a pomáhajú nášmu tímu pochopiť, ktoré časti webovej stránky sú pre vás najzaujímavejšie a najužitočnejšie.